Studio Brooklin com design funcional
Sem categoria
Studio de 22m² no Brooklin: Design Funcional para Viver Bem

Studio funcional integrando quarto, sala e cozinha com divisória ripada em madeira. Projeto: Simply Complex.
Viver em um apartamento pequeno não precisa ser sinônimo de abrir mão de conforto ou funcionalidade. Pelo contrário. O desafio de um Projeto de Interiores Studio Brooklin em São Paulo é justamente transformar a metragem reduzida em um lar completo, otimizado e visualmente acolhedor. Este projeto, feito para Frederico e seu parceiro, dois adultos com rotinas dinâmicas, mostra exatamente essa maestria em design. Eles buscavam um studio funcional e contemporâneo, com cozinha completa e espaço de armazenamento adequado para duas pessoas.
A contratação do escritório Simply Complex foi facilitada pela plataforma Archa, a ponte ideal entre clientes e arquitetos. A Archa, sendo a maior plataforma online de contratação de projetos de arquitetura e decoração, garantiu que os desejos do cliente fossem atendidos dentro de um orçamento predefinido: R$15.000,00 para a obra e R$30.000,00 para o mobiliário.
O Desafio de Otimizar um Studio de 22m² no Brooklin
O apartamento de apenas 22m² no Brooklin exigiu soluções criativas para integrar as necessidades de sala, quarto, home office e cozinha. A principal demanda era criar um espaço que, apesar de compacto, fosse completo. Isso incluía armazenamento suficiente para as roupas e enxoval de cama e banho de duas pessoas.
O arquiteto responsável utilizou a marcenaria sob medida como principal ferramenta para essa otimização.
Marcenaria Inteligente e a Iluminação Contemporânea
A primeira vista, a integração é total, porém sutilmente setorizada. O projeto soube equilibrar a necessidade de circulação com a de mobiliário. Por exemplo, uma divisória vazada com iluminação embutida separa a área da cama da cozinha, oferecendo privacidade visual sem bloquear a luz. Além disso, a iluminação inteligente e contemporânea foi priorizada, com o uso de perfis de LED e pendentes para criar diferentes cenários.
Madeira clara no teto e cinza nas paredes trazem uma base neutra e sofisticada, permitindo que a luz crie diferentes texturas e profundidades. Essa paleta de cores não sobrecarrega o ambiente, Projeto de Interiores Studio Brooklin em São Paulo, e ajuda a maximizar a sensação de amplitude.

Cozinha Completa em Studio: O Segredo do Aproveitamento
A cozinha era um ponto crucial. O cliente pedia um ambiente completo, mas com foco em economia na obra. A solução foi investir em eletrodomésticos essenciais e em uma marcenaria que pensasse em cada detalhe. O espaço conta com geladeira média, fogão de indução e um forno elétrico. O forno sugerido foi um modelo de 60 litros da DACO, o Diplomata, que é mais econômico e possui excelente reputação.
Bancada e Eletrodomésticos para uma Cozinha Otimizada
A bancada da cozinha foi projetada com a pedra Cinzandourinha, mas em acabamento escovado, não polido, para um visual mais refinado e menos comum. É essencial que essa pedra de área molhada seja hidrofugada, garantindo a durabilidade e a proteção contra manchas.
A área molhada da bancada apresenta um detalhe chamado rebaixo italiano, uma técnica que impede a água de escoar para as outras áreas. Sob a pia, há um planejamento meticuloso: espaço para balde e detergente, e uma seção com ferragem para lixeiras de lixo orgânico e inorgânico. Acima, há cinco nichos dedicados para armazenar vinhos.

Sala, Jantar e Home Office: Convivência e Produtividade
A área social precisava de flexibilidade. A mesa de jantar foi pensada para ser redonda e acomodar duas pessoas, posicionada de forma a não comprometer a circulação. As cadeiras escolhidas, o modelo T, são peças atemporais que harmonizam com a estética contemporânea do Projeto de Interiores Studio Brooklin em São Paulo.
O espaço de estar se funde com o quarto. O sofá ou poltrona foi substituído por uma elegante chaise aos pés da cama, que também funciona como um pouf estofado, criando uma área de relaxamento e leitura. Além disso, prateleiras e nichos decorativos com plantas e bonsais adicionam vida e aconchego ao design.
Home Office Compacto e Integrado com a Área de Lazer
O home office foi estrategicamente posicionado próximo à janela, aproveitando ao máximo a luz natural e a vista. O cliente precisava de uma escrivaninha pequena. Na verdade, o arquiteto criou duas estações de trabalho em uma bancada suspensa. Esse arranjo permite que ambos os moradores trabalhem lado a lado, ou que uma área sirva para o trabalho e a outra como apoio.

Refúgio de Conforto: Quarto e Banheiro
O quarto se destaca pelo conforto. A marcenaria foi dimensionada para garantir o armazenamento adequado de roupas de dois adultos e o enxoval completo.
Banheiro Sofisticado e a Iluminação Cênica para Relaxar
O banheiro foi o ambiente que recebeu as modificações finais para maximizar a sensação de spa. A bancada, que o cliente havia pedido, foi reposicionada para o lado direito e a profundidade aumentada. Esse aumento permitiu instalar uma pia de embutir, que é sempre superior. Ela facilita a limpeza e o escoamento de água, como o eventual resíduo de barba. A pedra Cinzandourinha escovada e hidrofugada também está presente aqui.
A iluminação é o ponto alto: o forro de gesso com sanca iluminada oferece uma luz indireta, que transforma o banho em uma experiência extremamente relaxante, quase como tomar banho em uma caverna. O nicho do box, que estava vertical, foi girado para a horizontal, harmonizando com o design do ambiente.

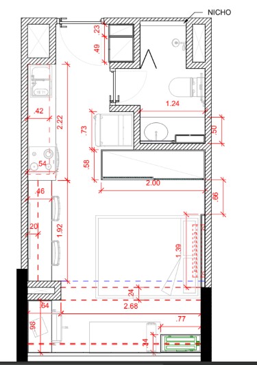
Planta Baixa e o Sucesso do Projeto de Interiores Studio Brooklin em São Paulo

A planta baixa revela a realidade do espaço: um studio compacto, com uma área de varanda e o banheiro. As dimensões exigiram que cada centímetro fosse pensado com precisão, desde a colocação do chuveiro e do vaso sanitário até a disposição da marcenaria embutida. Esse Projeto de Interiores Studio Brooklin em São Paulo prova que, com um planejamento de arquitetura detalhado e a escolha certa de materiais, é possível criar um lar luxuoso e funcional, mesmo em uma área limitada.
O segredo está no olhar de um profissional. Se você busca transformar seu espaço com a mesma expertise, a Archa pode te conectar ao escritório ideal.
Confira aqui o vídeo completo do Projeto de Interiores Studio Brooklin em São Paulo: