Este projeto começa com a história de um casal apaixonado por viagens, por bons vinhos e pela companhia de seus dois cachorrinhos. Eles gostam da casa cheia, de amigos, de família, de vida, e por isso o pedido era claro: uma sala ampla, com um sofá generoso e muito conforto para receber.
Para atender a todas essas expectativas em uma metragem de 60m² na capital federal, a Maria Laura Prado Arquitetura utilizou a plataforma da Archa para refinar a contratação e dar vida a um lar que une sofisticação, Decoração clean e funcional e muita personalidade. A cliente, Cesar Alves, procurava uma reforma apartamento pequeno com foco em cores leves, iluminação moderna e, o mais importante, ambientes que evitassem umidade nas paredes. Por isso, cada escolha de revestimento e material foi milimetricamente pensada. A seguir, fazemos um tour por cada cantinho transformado no Projeto de Interiores Residência Morada do Bosque em Brasília.
O refúgio de um casal viajante: O início do projeto
Com 35 e 37 anos, o casal de moradores desejava um lar que refletisse seus gostos, o que inclui a paixão por vinhos e viagens. No entanto, a presença de dois cães exigia soluções inteligentes para o piso, porque eles pediram para evitar tapetes onde os pets pudessem urinar no Projeto de Interiores Residência Morada do Bosque em Brasília.
Design de Interiores pet-friendly e a escolha pela praticidade
A necessidade de um Design de interiores pet-friendly resultou na escolha de pisos frios e revestimentos resistentes. Além disso, a marcenaria em tons claros e o estilo clean garantem que a arrumação e a limpeza sejam práticas no dia a dia, essenciais para quem tem a casa sempre aberta para receber. O conforto e a estética andam lado a lado neste Projeto de Interiores Residência Morada do Bosque em Brasília.
Sala de Estar e TV: o coração acolhedor para receber
O cômodo mais usado da casa, a Sala de TV, foi projetado para ser o principal ponto de convivência, acolhedor e confortável. O sofá generoso em tom verde musgo, combinado com as poltronas em madeira e tecido neutro, cria um convite imediato ao relaxamento.

A Decoração clean e funcional que maximiza o espaço
A parede principal da sala recebeu um revestimento ripado em tom de areia, que além de trazer textura e aconchego, segue a linha de cores leves e o estilo moderno. A iluminação embutida e sutil realça a textura da parede e, junto com as cortinas claras, potencializa a sensação de amplitude, um fator-chave para o casal. A Decoração clean e funcional é visível nos móveis de linhas retas e simples, que evitam excessos e otimizam a circulação.
Da simples passagem à galeria de vinhos: o corredor ganha vida
O corredor, que na planta original era apenas um ambiente de passagem, ganhou uma função espetacular e uma grande dose de personalidade. Ele foi transformado em uma verdadeira galeria, incorporando uma adega suspensa de ferro, conforme solicitado.

A parede do corredor galeria de vinhos foi revestida com uma pedra de aspecto natural e rústico, o que atendeu à necessidade de proteção das paredes e adicionou uma textura marcante ao estilo moderno do ambiente.
O espelho orgânico e o aparador de apoio, posicionados no meio da pedra, criam um ponto focal elegante e sofisticado. A iluminação de LED embutida no forro valoriza a textura da pedra e o charme da adega.
Suíte Master: amplitude, conforto e iluminação acolhedora
O quarto do casal foi pensado para ser um espaço de descanso e conforto, com amplitude e uma atmosfera visualmente contínua. A cabeceira se estende por toda a largura da parede, conferindo continuidade visual e aconchego.

As cores leves e a persiana que percorre quase toda a parede reforçam a sensação de amplitude. A Iluminação acolhedora em suíte é garantida por luminárias de mesa e spots embutidos com luz quente, ideal para um ambiente propício ao relaxamento e ao descanso. O painel amadeirado da parede oposta traz ainda mais conforto visual.
Closet funcional com toque natural
No closet, havia um pedido especial para manter a estrutura interna existente, o que levou à escolha inteligente de portas de correr com palha. Essa solução garante ventilação e adiciona um toque de aconchego natural ao espaço, que também precisava ser funcional, iluminado e amplo para acomodar roupas de cama e casacos.

Reforma completa: iluminação moderna em todos os ambientes
A iluminação foi um destaque central em todo o projeto, com a solicitação clara de luzes modernas em cada ambiente. Desde o LED em fita que valoriza a pedra no corredor até os painéis de luz no quarto de hóspedes, a estratégia luminotécnica criou uma atmosfera acolhedora, destacando os pontos fortes do Projeto de Interiores Residência Morada do Bosque em Brasília. No quarto de hóspedes, por exemplo, o princípio do "menos é mais" foi aplicado, com elementos pontuais selecionados para compor sem exageros, garantindo um ambiente receptivo e confortável.

No fim, a Maria Laura Prado Arquitetura entregou um projeto que conecta de forma simples e acolhedora, com personalidade e equilíbrio. O lar agora está pronto para receber amigos, vinhos e todas as histórias que ainda virão.
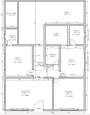
Planta baixa da Residência Morada do Bosque mostrando a distribuição dos 60m².

Confira aqui o vídeo com tour pelo Projeto de Interiores Residência Morada do Bosque em Brasília.