O lar é muito mais do que a soma de paredes e móveis; ele precisa ser um palco de histórias e memórias vividas. Por isso, o Projeto de Interiores Apartamento Oliveiras na Vila Morumbi em São Paulo foi desenhado com o coração para atender à família de Luciano, Michele e o pequeno Miguel. O objetivo principal da arquiteta Andressa Cechetti foi traduzir o desejo de uma família que valoriza o aconchego e a funcionalidade nos espaços. A contratação do projeto foi facilitada pela plataforma da Archa, que conecta clientes com arquitetos experientes para transformar sonhos em realidade.
Este apartamento de 90m², batizado de "Apartamento LM", se tornou um verdadeiro refúgio, onde cada cantinho tem uma intenção clara. A proposta era criar um ambiente onde passado, presente e os sonhos futuros da família pudessem se encontrar. O resultado é um lar planejado em cada detalhe, desde os ambientes sociais amplos até os quartos que refletem a identidade de cada morador.
Apartamento Oliveiras: aconchego e funcionalidade em 90m²
O projeto de interiores foi pensado para três pessoas com necessidades específicas, como a criação de espaços de trabalho separados para o casal, além de uma área de estudo para o filho. A prioridade máxima era a integração entre cozinha, sala de estar, sala de jantar e sacada, promovendo a interação familiar e social. A paleta de cores neutras e a iluminação geral e indireta reforçam o estilo acolhedor, enquanto o mobiliário planejado otimiza o espaço e atende às demandas do dia a dia.

Integração total: sala de estar, jantar e varanda
Os ambientes sociais foram projetados para receber e acolher a todos. A sala de estar se conecta diretamente à varanda, permitindo a entrada do ar fresco e da luz natural, o que amplifica o espaço e a sensação de bem-estar. É fácil imaginar Luciano e Michele relaxando ali após um dia cheio, enquanto Miguel brinca com um sorriso contagiante. A sala de estar conta com um painel para TV de 60 polegadas com compartimentos, um sofá retrátil de 4 lugares e pufes, garantindo conforto máximo.
A sala de jantar foi posicionada de forma estratégica para convidar não apenas às refeições, mas também às conversas e risadas que transformam uma casa em um lar. A mesa acomoda oito lugares e está acompanhada de um aparador com gavetas e uma cristaleira iluminada. É neste espaço que o quadro da Santa Ceia, um item pessoal da família, encontrou seu lugar de destaque, harmonizando a decoração. A varanda, por sua vez, complementa a área de convivência com nichos decorativos, um banco com armazenamento interno e uma mesa para quatro lugares.

A Cozinha: coração prático e cheio de personalidade
A cozinha é o verdadeiro coração do apartamento, e a arquiteta a planejou para ser prática e, ao mesmo tempo, cheia de personalidade. Ela se mantém integrada aos ambientes sociais, reforçando a ideia de espaços compartilhados e interação.
O planejamento incluiu armários superiores e inferiores, gavetas para utensílios e mantimentos, além de espaços dedicados para lava-louça, cooktop e geladeira. Pensando nos momentos em que a família se reúne para preparar receitas favoritas, ou simplesmente para compartilhar um café tranquilo, a funcionalidade é a palavra-chave.

Refúgios pessoais: suíte master, quarto do Miguel e home office
Nos ambientes privativos, o foco foi ir além da estética, criando espaços que refletem a identidade de cada um.
Suíte Master: Conforto e Organização para o Casal
A suíte master é descrita como um verdadeiro santuário para o casal. Desde os tons suaves até o design acolhedor, tudo foi pensado para oferecer intimidade e conforto. O ambiente incorpora um guarda-roupa planejado com portas de correr espelhadas e divisórias internas, uma cama baú e criados-mudos funcionais.
Além disso, a suíte conta com uma área compacta para home office ou penteadeira, equipada com prateleiras e uma cadeira confortável. O banheiro segue o padrão de organização, com gabinetes, armários embutidos espelhados, nichos no box e suportes para toalhas.

Quarto Infanto-Juvenil: Um universo de imaginação e estudo
O quarto do Miguel é um pequeno universo, planejado para ser funcional e estimular a imaginação, onde ele pode crescer e sonhar. Ele possui um guarda-roupa planejado com espaço para brinquedos e calçados, uma cama de solteiro com cama auxiliar e uma mesa de estudos funcional.
Home office compacto e eficiente: O equilíbrio necessário
A necessidade de espaços de trabalho para Luciano e Michele foi atendida com a criação de um Home Office compacto e eficiente. Este espaço foi projetado para trazer a serenidade necessária para que as ideias fluam, mantendo a integração com o restante do apartamento. O escritório também funciona como um terceiro quarto, pois conta com um sofá-cama de casal, prateleiras suspensas, mesa funcional com gavetas e espaço para eletrônicos. É também o local ideal para expor as medalhas, que são itens pessoais de valor para o cliente.
Concretizando sonhos com Arquitetura e Design
Cada material, acabamento e cor foi escolhido com propósito. A dedicação em criar um lar que refletisse o estilo e as necessidades da família Oliveiras foi o motor deste belo Projeto de Interiores Apartamento Oliveiras na Vila Morumbi em São Paulo.
Se você também busca um projeto que traduza sua história em cada linha e cor, como este, saiba que a Archa facilita todo o processo, conectando você a profissionais como Andressa Cechetti Arquitetura e Interiores. A plataforma oferece projetos completos de Design de interiores de forma 100% online, garantindo segurança e expertise na sua jornada de Reforma e decoração.
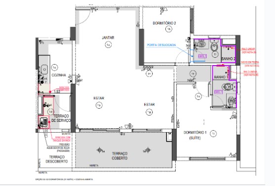
A Importância da Planta Baixa no Planejamento

A planta baixa é o mapa que guia toda a transformação do espaço, especialmente em um apartamento de 90m² que precisava maximizar a funcionalidade. Ela ilustra claramente a integração entre jantar, estar e terraço coberto, conforme solicitado no briefing para promover a interação. Além disso, a planta demonstra a otimização dos dois dormitórios e a forma como o terceiro quarto (Dormitório 2) foi adaptado para ser o home office/escritório, atendendo às necessidades de trabalho e estudo da família. A distribuição inteligente dos móveis planejados, visível nas imagens, é o que permite que um apartamento de 90m² ofereça tanto conforto e versatilidade.
Confira aqui o vídeo com tour pelo Projeto de Interiores Apartamento Oliveiras na Vila Morumbi em São Paulo: