Cobertura em Perdizes, une lazer, conforto e funcionalidade
Galeria de projetos
Projeto de Interiores para Cobertura no bairro Perdizes em São Paulo: lazer e funcionalidade para o casal

Detalhe da área gourmet no pavimento inferior. Projeto: STUDIO LUMMI
Procurar um lar que una o conforto da vida urbana com a tranquilidade de um refúgio particular é o desejo de muitos. O Projeto de Interiores para Cobertura no bairro Perdizes em São Paulo, é um exemplo perfeito dessa união. O casal Mirella e Marcio, juntamente com o enteado Miguel, buscavam uma reforma completa para transformar seus 187m² em um espaço ideal para a convivência, o entretenimento e, sobretudo, que se encaixasse em sua rotina dinâmica de viagens e trabalho híbrido.
O projeto foi assinado pelo escritório STUDIO LUMMI, que soube interpretar as necessidades dos moradores com maestria. Se você também busca um projeto de interiores que transforme seu imóvel, a contratação é facilitada pela plataforma da Archa, que conecta clientes aos melhores arquitetos do Brasil de forma 100% online.
O desafio: reformar 187m² para convivência e lazer
O principal objetivo da reforma era potencializar a funcionalidade e a área de lazer. Mirella e Marcio precisavam de uma Cobertura com piscina e churrasqueira para receber os amigos , mas também necessitavam de soluções eficientes de Otimização de espaço e armazenamento em todos os cômodos, desde a cozinha até a lavanderia.
Os arquitetos do STUDIO LUMMI enfrentaram o desafio de reformular a distribuição dos dois pavimentos, garantindo uma boa sonorização e iluminação, aspectos cruciais para o conforto do lar. O resultado é um lar moderno, com Decoração em tons neutros e madeira, que respira aconchego, um Projeto de Interiores para Cobertura no bairro Perdizes em SP.

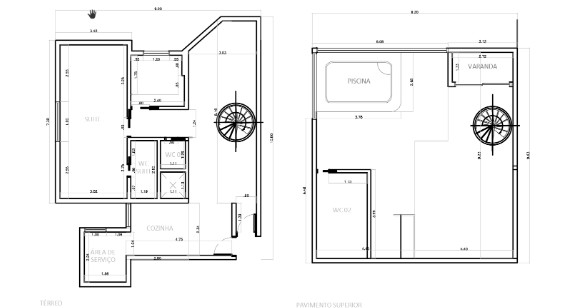
Piso inferior: distribuição inteligente e otimização do espaço
No pavimento térreo, o Design de interiores moderno e funcional focou em criar ambientes fluidos e altamente práticos. A cozinha e a área de serviço demandavam alta capacidade de armazenamento para utensílios, produtos de limpeza e eletrodomésticos, como forno, cooktop e lava-louças.
Sala de jantar e estar: conexão e aconchego
A sala de jantar foi pensada para o uso diário, sem excesso de formalidade, incorporando a mesa de jantar que seria reutilizada pelo casal. Para a sala de estar, o foco foi a convivência, sem a presença de TV, utilizando o sofá e poltronas já existentes. O uso de um painel ripado de madeira e luz indireta cria um clima de acolhimento e sofisticação leve.


O bar exclusivo para colecionador
Um dos pedidos mais personalizados veio de Marcio: um espaço para expor e armazenar sua valiosa coleção de copos de cerveja. O STUDIO LUMMI criou um bar completo, elegante e bem integrado, que inclui uma cervejeira e uma adega. O armário vitrine, com iluminação embutida, transforma a coleção em um verdadeiro destaque na decoração. Esta Solução para colecionador de copos de cerveja demonstra como o Design de interiores moderno e funcional pode abraçar hobbies específicos.
Suíte master e banheiro: neutro e acolhedor
A suíte master manteve a cama queen existente. O uso de painéis de madeira clara na cabeceira e iluminação suave cria um ambiente sereno e propício ao descanso. O banheiro segue a paleta neutra, com revestimentos claros e detalhes em madeira e preto fosco no metais. Um toque de cor terrosa no box cria contraste e personalidade.


Pavimento superior: a área de lazer dos sonhos
O segundo andar foi transformado no coração social do apartamento. Era essencial criar uma Reforma de apartamento com área de lazer que fosse convidativa e funcional.
Churrasqueira, piscina e cobertura retrátil
O espaço externo, a Varanda, foi integrado e ganhou uma cobertura retrátil. A grande estrela é a área gourmet, que comporta uma churrasqueira, um cooktop adicional, uma geladeira pequena e armários para utensílios. A área de refeições é perfeita para confraternizações. O casal desejava a cobertura com piscina e churrasqueira, e o projeto integrou esses elementos de forma elegante, criando um refúgio refrescante com total privacidade. A escolha por pisos de tijolinho na área gourmet e deck de madeira na área da piscina adiciona textura e calor.



Design de Interiores moderno e durável: madeira e tons neutros
A paleta de cores e materiais para o Projeto de Interiores para Cobertura no bairro Perdizes em SP foi escolhida pensando na facilidade de manutenção e na durabilidade, essenciais para quem viaja com frequência. O uso constante de madeira e tons neutros (bege, branco, cinza) cria uma base atemporal. Detalhes em preto fosco, tanto nos metais dos banheiros quanto nos pendentes da área gourmet, injetam modernidade e um toque industrial chic. Esta atenção aos materiais e ao Design de interiores moderno e funcional garantiu que o apartamento em Perdizes com área gourmet fosse não apenas bonito, mas também prático para o dia a dia.
A Archa viabilizando projetos exclusivos como esta cobertura em Perdizes
O sucesso da Cobertura Lavrini reside na sintonia entre as necessidades do cliente e a visão apurada do STUDIO LUMMI. A plataforma Archa simplifica o processo de encontrar um profissional de Design de interiores ou arquitetura com o expertise ideal para o seu projeto, não importa a complexidade. Desde a busca por uma Solução para colecionador de copos de cerveja até a realização de um Projeto de Interiores para Cobertura no bairro Perdizes em São Paulo completo, a Archa conecta você ao talento necessário para transformar sua casa. Comece hoje mesmo a planejar a sua Reforma de apartamento com área de lazer e dê o primeiro passo para o lar dos seus sonhos.
Confira o tour do Projeto de Interiores para Cobertura no bairro Perdizes em São Paulo:
BAB: a nova vitrine da arquitetura brasileira
Conheça a Bienal de Arquitetura Brasileira — BAB — ela surge como um marco no cenário nacional, com o ambicioso objetivo de tornar a arquitetura mais acessível e próxima à vida cotidiana. Organizado pela Archa, o evento vai ocupar o Parque Ibirapuera, em São Paulo, entre março e abril de 2026, oferecendo ao público uma experiência plural com casas modelo, pavilhões temáticos, instalações interativas, oficinas e espaços sensoriais.
Mais do que uma mostra de projetos, a BAB propõe um diálogo com a diversidade cultural, social e geográfica do Brasil — reunindo expressões arquitetônicas de todos os estados, por meio de um concurso nacional que selecionará residências de cerca de 100 m² para representar cada unidade federativa. Nesse sentido, a Bienal reafirma seu propósito de valorizar a produção local, democratizar o acesso à arquitetura e mostrar como o desenho dos espaços é parte fundamental da vida em sociedade.