Apartamento no Parque da Cidade em São Paulo com integração e marcenaria inteligente
Galeria de projetos
Design contemporâneo e integração no apartamento Parque da Cidade em São Paulo

A sala de estar prioriza a convivência com um layout em formato de roda. Projeto: PEGRI ARQUITETURA.
Transformar um imóvel de 227 m² em um lar que equilibra funcionalidade e acolhimento foi o ponto de partida para este Projeto de Interiores Apartamento no Parque da Cidade em São Paulo. O escritório PEGRI ARQUITETURA conduziu uma reforma completa, otimizando a planta original para criar ambientes que respiram liberdade. Se você busca inspiração para sua próxima reforma, saiba que a contratação de profissionais talentosos pode ser facilitada pela plataforma da Archa, conectando você aos melhores nomes do design nacional.
Fluidez e conexão no coração de São Paulo
A principal estratégia dos arquitetos foi a demolição de alvenarias estratégicas para integrar sala, varanda e cozinha. Essa mudança permitiu que a luz natural percorresse todo o espaço social, criando uma circulação livre e fluida. O mobiliário se organiza como uma “grande roda”, garantindo que todos os moradores e convidados consigam interagir visualmente, independentemente de onde estejam sentados.

Cozinha integrada com canto alemão no Projeto de Interiores Apartamento no Parque da Cidade em São Paulo

A cozinha do Projeto de Interiores Apartamento no Parque da Cidade em São Paulo foi minuciosamente resolvida com uma ilha que serve de elo com a sala. O destaque fica para o canto alemão, uma solução inteligente para otimizar espaço e oferecer conforto durante as refeições rápidas. A linearidade do trabalho e a proximidade com a "copa dos eletrodomésticos" tornam o dia a dia muito mais prático.

Setorização inteligente e escolha de materiais no Projeto de Interiores Apartamento no Parque da Cidade
Embora os espaços sejam abertos, a setorização ocorre por meio da paleta de materiais. A madeira e os tons quentes definem os locais de maior permanência, como o estar e a TV, e transmitem uma sensação imediata de descanso. No lavabo, a elegância surge com o revestimento verde em efeito velvet, criando um ponto de cor sofisticado que quebra a neutralidade do corredor.
A varanda como refúgio para toda a família no Projeto de Interiores Apartamento no Parque da Cidade em São Paulo
A varanda é, sem dúvida, o espaço mais especial da casa. Projetada para ser o principal local de lazer, ela une o universo lúdico das crianças ao descanso dos adultos.


Os arquitetos criaram um painel livre para as filhas expressarem sua criatividade e um aparador desenhado sob medida para organizar os brinquedos ou servir de apoio em dias de festa. Até os pets ganharam espaços dedicados para dormir e uma área especial na lavanderia para banho e mantimentos.

Confira o vídeo tour do Projeto de Interiores Apartamento no Parque da Cidade em São Paulo:
Intimidade e conforto nas suítes
Na área íntima, a marcenaria planejada resolveu cada necessidade específica dos moradores. A circulação agora abriga uma rouparia iluminada de duas portas, aproveitando cada centímetro disponível.
Suíte master: home office e penteadeira integrados

O quarto do casal ganhou um closet generoso e uma bancada que substituiu a TV para dar lugar ao home office e à penteadeira. A cabeceira em madeira com iluminação difusa cria um cenário relaxante para a cama queen.

O lúdico no quarto das filhas
Para as meninas, o projeto trouxe o encanto das "caminhas de casinha" e papéis de parede coloridos em xadrez rosa e amarelo. O projeto dividiu o guarda-roupa de forma equitativa, garantindo que cada uma tenha seu espaço de organização.

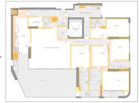
Transformação estrutural e planta baixa
Toda essa fluidez só foi possível graças a uma análise técnica precisa da planta original. A redução do hall de entrada e a realocação do lavabo social deram à sala a amplitude necessária para o novo estilo de vida da família.

O resultado final deste Projeto de Interiores Apartamento no Parque da Cidade em São Paulo é um apartamento que não apenas segue tendências de interiores, mas que se adapta perfeitamente à rotina de quem o habita, provando que a boa arquitetura é aquela que coloca as pessoas no centro do design.
BAB: a nova vitrine da arquitetura brasileira
A Bienal de Arquitetura Brasileira — BAB — surge como um marco no cenário nacional, com o ambicioso objetivo de tornar a arquitetura mais acessível e próxima à vida cotidiana. Organizado pela Archa, o evento vai ocupar o Parque Ibirapuera, em São Paulo, entre março e abril de 2026, oferecendo ao público uma experiência plural com casas modelo, pavilhões temáticos, instalações interativas, oficinas e espaços sensoriais.
Mais do que uma mostra de projetos, a BAB propõe um diálogo com a diversidade cultural, social e geográfica do Brasil — reunindo expressões arquitetônicas de todos os estados, por meio de um concurso nacional que selecionará residências de cerca de 100 m² para representar cada unidade federativa. Nesse sentido, a Bienal reafirma seu propósito de valorizar a produção local, democratizar o acesso à arquitetura e mostrar como o desenho dos espaços é parte fundamental da vida em sociedade.